£140,000 For Sale

Lincoln Place, Manchester, M1

1 1

Key Features

  • Great location more and more like a 1 bed apartment
  • Elevator
  • Sep kitchen
  • Sep bathroom
  • Lots of period features
  • all electric
  • Large windows, high ceilings
  • Very airy
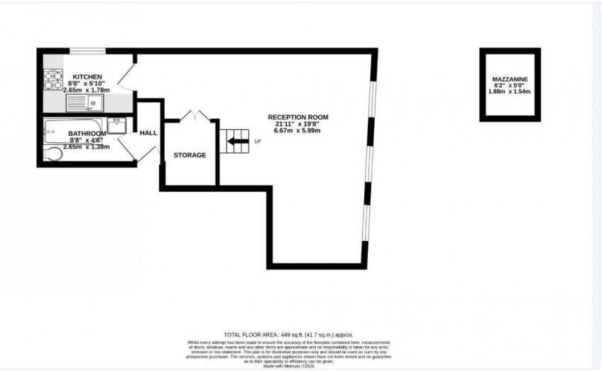
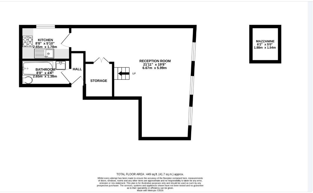
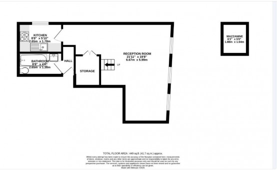
Larger than average 2nd floor studio flat with mezzanine floor (accommodates a double bed) in popular location close to the Met and Uni. Elevator, lots of period features. Set within the characterful Lincoln Place on Hulme Street, this beautifully airy duplex apartment offers a wonderful blend of period charm and practical modern living. Entered on the ground floor, it feels increasingly like a true one-bedroom apartment rather than a compact city pad, giving you that all-important sense of space and separation between living and sleeping.

From the moment you step inside, you’ll notice the features that make this home so appealing: high ceilings, large windows and an abundance of natural light that creates a calm, uplifting atmosphere throughout. The proportions are generous, with lovely period touches adding warmth and personality, while the all-electric set-up keeps things straightforward and low-maintenance.

The reception room is an inviting place to unwind or entertain, with the airy feel and elegant detailing making it easy to style whether your taste is cosy and layered or clean and contemporary. A separate kitchen is a real bonus at this price point, keeping cooking and hosting nicely contained, and the separate bathroom adds everyday convenience and a more ’proper home’ layout.

Practicalities are well catered for too, with an elevator in the building making coming and going that much easier, whether you’re juggling shopping bags, commuting essentials, or simply want that added comfort day to day. With the home’s duplex design, you can enjoy a clear divide between social space and your bedroom, ideal for hybrid working, relaxed evenings in, and a more restful routine.

The location is a genuine highlight. Positioned within easy reach of Manchester city living, you’ll find supermarkets, schools, leisure facilities and healthcare, Uni Manchester Met close by for day-to-day ease, while excellent rail links make commuting and weekends away feel effortless. Manchester Airport is also accessible when you need it, whether for business trips or spontaneous getaways.

Offered for sale at Offers Over £140,000, this is a smart buy for anyone looking for a distinctive, light-filled home in a great location, with the added benefits of a separate kitchen and bathroom, period character, and a layout that lives like a true one-bedroom apartment. It’s the kind of place that feels good to come home to, and even better to make your own and for students/those working at the Uni's/Met it's well situated or investors.

Property Reference 12LINC

Register for Property Updates